Listed by Joe Platz of KW Everett
Active

Listing Tools

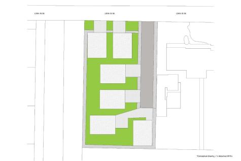
Prime S. Everett development project with 1/2+ acre in Mukilteo School District. Conceptional 6 home-site design for maximum resale potential for the lowest development cost. Water and Sewer on property/ in street. Conveniently located with easy access to I-5, Silverlake, PAE, Boeing, Providence Medical Center, Everett Naval Station, Fluke and more. Vibrant growth with the Everett Marina, Riverfront Development and more. City of Everett is targeting to grow by 89,000 jobs and 87,000 residents by 2050. Don't miss this opportunity. Seller will carry with 30% down and no payments for 12 months while you get plat approval. Sold as-is, where -is. Seller has no studies. Buyer to verify all information to buyer's satisfaction.

Property Details of 308 120th Street SE

Listing data courtesy of NWMLS as provided by MLS Grid as of November 16, 2025 8:02 PM EST . All data is obtained from various sources and has not been, and will not be, verified by broker or NWMLS. All information should be independently reviewed and verified for accuracy.  Properties may or may not be listed by the office/agent presenting the information. Supplied Open House Information is subject to change without notice. Many homes contain recording devices, and buyers should be aware they may be recorded during a showing. Listing data shown with the three tree icon are provided courtesy of NWMLS. Some IDX listings have been excluded from this website. IDX information is provided exclusively for consumers’ personal non-commercial use and may not be used for any purpose other than to identify prospective properties consumers may be interested in purchasing.  The data is deemed reliable but is not guaranteed.

Hi there! How can we help you?

Contact us using the form below or give us a call.

Send Us A Message:

I agree to receive marketing and customer service calls and text messages from Realogics | Diane Tien. To opt out, you can reply 'stop' at any time or click the unsubscribe link in the emails. Consent is not a condition of purchase. Msg/data rates may apply. Msg frequency varies. Privacy Policy.

Do not fill in this field:

This site is protected by reCAPTCHA and the Google Privacy Policy and Terms of Service apply.

Hi there! How can we help you?

Contact us using the form below or give us a call.

Send Us A Message:

Do not fill in this field:

This site is protected by reCAPTCHA and the Google Privacy Policy and Terms of Service apply.

Hi there! How can we help you?

Contact us using the form below or give us a call.

Send Us A Message:

Do not fill in this field:

This site is protected by reCAPTCHA and the Google Privacy Policy and Terms of Service apply.

Do not fill in this field:

This site is protected by reCAPTCHA and the Google Privacy Policy and Terms of Service apply.

Do not fill in this field:

This site is protected by reCAPTCHA and the Google Privacy Policy and Terms of Service apply.

Do not fill in this field:

This site is protected by reCAPTCHA and the Google Privacy Policy and Terms of Service apply.

$

Do not fill in this field:

This site is protected by reCAPTCHA and the Google Privacy Policy and Terms of Service apply.