Listed by Breanna YaLi Chen of RE/MAX Eastside Brokers,Inc.
For Rent

Listing Tools

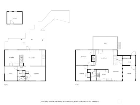
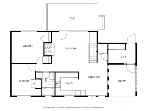
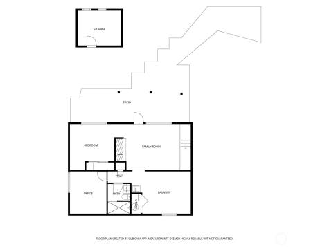
For Lease. Welcome to this spacious 3-bedroom, 2-bath home with a large yard and freshly painted interior. The fully finished basement includes an additional bedroom, a bonus room, and living area-ideal for guests, a home office, or play space. Enjoy the outdoors on the freshly painted deck overlooking your private yard. Conveniently located near top-rated schools and just 9 minutes to Factoria Square Mall and T&T Supermarket, with parks, shopping, and dining all close by.

Property Details of 4020 156th Avenue SE

Listing data courtesy of NWMLS as provided by MLS Grid as of November 8, 2025 2:04 PM EST . All data is obtained from various sources and has not been, and will not be, verified by broker or NWMLS. All information should be independently reviewed and verified for accuracy.  Properties may or may not be listed by the office/agent presenting the information. Supplied Open House Information is subject to change without notice. Many homes contain recording devices, and buyers should be aware they may be recorded during a showing. Listing data shown with the three tree icon are provided courtesy of NWMLS. Some IDX listings have been excluded from this website. IDX information is provided exclusively for consumers’ personal non-commercial use and may not be used for any purpose other than to identify prospective properties consumers may be interested in purchasing.  The data is deemed reliable but is not guaranteed.

Hi there! How can we help you?

Contact us using the form below or give us a call.

Send Us A Message:

I agree to receive marketing and customer service calls and text messages from Realogics | Diane Tien. To opt out, you can reply 'stop' at any time or click the unsubscribe link in the emails. Consent is not a condition of purchase. Msg/data rates may apply. Msg frequency varies. Privacy Policy.

Do not fill in this field:

This site is protected by reCAPTCHA and the Google Privacy Policy and Terms of Service apply.

Hi there! How can we help you?

Contact us using the form below or give us a call.

Send Us A Message:

Do not fill in this field:

This site is protected by reCAPTCHA and the Google Privacy Policy and Terms of Service apply.

Hi there! How can we help you?

Contact us using the form below or give us a call.

Send Us A Message:

Do not fill in this field:

This site is protected by reCAPTCHA and the Google Privacy Policy and Terms of Service apply.

Do not fill in this field:

This site is protected by reCAPTCHA and the Google Privacy Policy and Terms of Service apply.

Do not fill in this field:

This site is protected by reCAPTCHA and the Google Privacy Policy and Terms of Service apply.

Do not fill in this field:

This site is protected by reCAPTCHA and the Google Privacy Policy and Terms of Service apply.

$

Do not fill in this field:

This site is protected by reCAPTCHA and the Google Privacy Policy and Terms of Service apply.